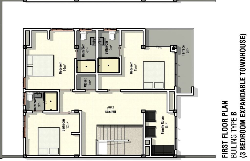
3 Bedrooms

3 Bathrooms & 1 Powder Room

2 Garages (3-car capacity)

1. General Structure & Finishes
Solid reinforced concrete structure • Sandcrete block walling • Internal & external plastering and painting • Floor tiling throughout living rooms, bedrooms, kitchen & bathrooms • POP or gypsum ceilings • Aluminium sliding windows • Carbon crystal wooden internal doors • Front and rear security doors • Wardrobe spaces in all bedrooms

2. Kitchen Area
Fitted kitchen cabinets (upper & lower units) • Quartz countertop • Stainless steel sink with mixer top • Washing machine point • Wall tiles (splashback)

3. Bathrooms & Tiles
Close couple WC with dual flush • Wash-hand basins with a cabinet • Shower cubicle or glass screen • Water heater (each bathroom) • Wall and floor ceramic tiles

4. Installed Appliances & Fixtures
Ceiling fans point • Air Conditioning points • Kitchen extractor hood • Built-in gas cooker • Water heater points • Electrical prepaid meter • TV & satellite point (living room & master bedroom) • Internet/data point provision

5. Water & Power Systems
Water storage tank • Overhead water supply system • Septic tank or bio-digester • Connection to borehole or municipal supply

6. External Feature
Paved compound drainage • Perimeter fence with security gate • Internal fence • External lighting (security/flood & wall lamps) • Basic landscaping (grass, pavers) • Private parking area – 2–3 cars

7. Optional Upgrade (Confirm Package)
Smart home system • Inverter or solar power system • Generator socket • Full CCTV installation • Home security alarm with motion sensors

Ready to pursue your dream home?

The journey may be challenging, but with GENIUS ABMENS, you’re never alone, we turn your property dreams into reality, one step at a time.

Get this building?

Fill out the form below and we’ll get back to you about this property